您当前的位置:   首页 > 文化新闻
李沁园 李奕洋:长白山金代皇家神庙布局复原及设计尺度初探
栏目:文化新闻 发布时间:2026-02-02 作者:小编 来源:网络

长白山金代皇家神庙布局复原及设计尺度初探李沁园 李奕洋

摘要:长白山作为金王朝的肇兴之地,于金大定十二年(1172年)被金世宗敕封为“兴国灵应王”,地位尊崇,敕令于长白山以北营建祭祀庙宇,并规定每年春秋两季举行祀典。但该神庙在损毁后其位置一直不明。直至2013年,考古发掘揭示原被推定为唐代渤海国遗存的吉林安图宝马城遗址,实为一座金代高等级建筑群,后经研究确认为金世宗敕建的长白山神庙。本文通过系统梳理相关史料文献及考古简报,基于遗址现存各类建筑基址的形制与尺度,对神庙的总体布局展开复原研究,由此进一步分析神庙布局的特征和背后的设计理念。研究提出:长白山金代神庙建筑群在布局上承袭了中原地区国家级祠祀建筑的规制,以工字殿为核心,采用廊院式布局;建筑群整体布局以方格网为模数,控制各类建筑的位置,便于测量与施工。依托对建筑群布局的复原研究,对匠人的设计思路以及传统古建筑“形”和“制”加以探寻。关键词:长白山;金代皇家神庙;祭祀建筑;寺庙布局;复原研究

金大定十二年(1172年),有司言:“长白山在兴王之地,礼合尊崇,议封爵,建庙宇。”长白山作为金政权的肇兴之地,被赐封为兴国灵应王,地位尊崇,仅次于东岳,在其余岳镇海渎之上[1]。同年,在长白山以北开始修建祭祀庙宇。两年后,大定十四年(1174年)六月庙宇建毕,次年朝廷开始遣使前往庙宇实施祭祀,自此定下每年春秋两季举行祭祀典礼[2]

长白山金代神庙遗址位于吉林省安图县二道白河镇,在被探明性质前,史料记载和历次文物普查中一直被认作唐代渤海国始建的朝贡路上的重要驿站、辽金时期沿用的“宝马城”遗址,因此将“宝马城遗址”作为文物保护单位名称公布。2013年,为明确“宝马城”始建年代,支持遗址保护规划工作,吉林大学边疆考古研究中心对该遗址进行了试掘,初步判定该遗址应为一处金代高等级建筑遗址,且可能是金代皇家修建的祭祀长白山的神庙[3]

为进一步探明遗址的性质,吉林省文物考古研究所、吉林大学边疆考古研究中心自2014年起对该遗址进行了持续四年的考古发掘工作,出土的各类建筑残件均表明该遗址确为金代建筑遗址。2016年,该遗址的考古发掘因发现数块刻有“金”“癸丑”“於”字样的玉册残块而取得突破性进展。结合文献史料,与前文提到的金大定十二年始建的庙宇记载相符。原“宝马城遗址”被正式确定为金王朝用于祭祀长白山的庙宇遗址,并将其暂命名为“长白山金代皇家神庙遗址”[4]

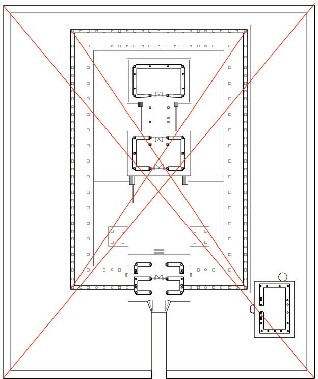
长白山金代神庙遗址坐北朝南面对长白山,距离长白山主峰约50千米(图1)。遗址先后发掘清理出城墙、寝殿、正殿、正门、廊庑、庭院等建筑基址,虽尚未全面发掘,但已揭露的程度基本可以反映长白山金代神庙整体的布局(图2)。本文通过遗址现状结合有关绘画、碑刻、文献记载对神庙的布局展开复原探讨,以加深对金代皇家祭祀庙宇格局的认识。

图片

图1 金代长白山神庙区位图(作者自绘)

图片

图2 考古发掘揭示的金代长白山神庙遗址布局示意图(作者根据吉林大学边疆考古研究中心提供底图自绘)


一、金代长白山神庙历史沿革


关于长白山金代神庙记载,见于《大金集礼》《金史》两部史料,另外民国时期的《安图县志》中对神庙遗址略有描述。《金史·志第十六》中记载:“大定十二年,‘长白山在兴王之地,礼合尊崇,议封爵,建庙宇’,十二月……奉敕旨封兴国灵应王,即其山北地建庙宇。十五年三月,奏定封册仪物……遣使副各一员,诣会宁府所司于庙中陈设如仪。庙门外设玉册、衮冕幄次,牙杖旗鼓从物等视一品仪。明昌四年十月,备衮冕、玉册、仪物,上御大安殿……复册为开天弘圣帝”[5]《大金集礼》中记载:“大定十二年二月三日,检讨到长白山建庙典故下项。敕旨,准奉行。十二月一日,礼部、太常寺、学士院检定到爵号名称,及差官相视到建庙地步下项。山北地一段各面七十步,可以兴建庙宇。十四年六月,建毕……十五年五月,敕长白山兴国灵应王依五岳例降香”[6]。由上述记载可以梳理出长白山神庙建造的时间线,金大定十二年长白山被封为兴国灵应王,朝廷差官员前往长白山选择建造祭祀庙宇的地点,随后定在长白山北侧有一块各边长为七十步的位置兴建庙宇。大定十四年六月,庙宇修建完毕,从选址到建成历时仅一年半。庙宇建成后第二年(1175年)定下每年春秋两季对长白山进行祭祀。明昌四年(1193年),长白山在金中都大安殿被加封为开天弘圣帝。

史料仅记载了长白山神庙从封爵到建成的历史,并没有任何史料提及长白山神庙自金明昌四年以后的状况和被毁时间。《民国安图县志卷一·古迹志》“宝马城”条记载:“在县西南,距城七十里,有古城一座,建修之年无可稽考,现已倾颓不堪,仅有城基尚在,遍地瓦砾而已。计城周围二百六十丈。”这里描述的被毁古城应该就是金代长白山宝马城。根据现场考古发掘发现了残留的木炭痕迹,有研究者推断该建筑群有可能毁于火灾[7]


二、长白山神庙单体建筑考古发掘情况及平面复原


(一)正门

神庙正门面阔三间,进深两间,为分心槽形式,平面呈长方形。台明东西长约19.2米,南北宽约13.9米。建筑虽面阔三间,但是在前后檐次间墙内均设有辅柱,进深方向心间、次间置有辅柱,柱础尺寸小于角柱和前后檐当心间平柱。前后檐当心间开敞,分心槽当心间设门,进深方向当心间留有通往廊庑的通道。墙基厚约1.3米。正门面阔方向当心间间广约5.45米,东次间间广约4.8米,西次间间广约5.12米,进深方向当心间间广约5米,前后次间约2.4米[8]。台明与院外地面高差为1.8米,南侧正中设有三瓣蝉翅墁道,墁道南端与卵石甬道相连接。台明与院内地面高差为1.3米,用踏步相连(图3)。

图片

图3 正门平面复原示意图(作者自绘)

(二)正殿

正殿建筑台明前设有月台,台明东西方向残长22.2~22.9米、已揭露出的南北方向最宽处约15.5米,月台东西方向长约17.9米、南北方向宽约9.4米。正殿面阔三间,进深两间,为单槽形式,室内仅有两根内柱,两内柱后移至进深方向北次间位置。建筑柱础位置与寝殿基本相对应,通面阔约16.5米,通进深约10.8米。前檐当心间间广约6.1米,次间约5.2米;进深方向每间间广约5.3米。正殿除前后檐当心间设门外,其余各面为砖砌墙体,墙基厚1.3米。台明高约1米,通过月台东西两侧与台明夹角位置的踏道下至庭院,踏步与院内宽约1.15米的砖砌甬道相连,可由此通往东西廊庑(图4)。

图片

图4 正殿平面复原示意图(作者自绘)

(三)寝殿

现存寝殿遗址台基南北宽约14.4米,东西长约22米。台基上建筑面阔、进深各三间,仅用一圈檐柱,不设内柱。通面阔约16.6米,通进深约10米。面阔方向,当心间间广约6.09米,次间间广约5.4米;进深方向,当心间间广约5米,次间约2.5米。寝殿除前檐当心间设门外,其余各面均为砖砌墙体,墙基厚1.3米。台明高约0.8米,前与穿廊相接,通过穿廊东西两侧与台明夹角位置的踏道下至庭院(图5)。

图片

图5 寝殿平面复原示意图(作者自绘)

(四)亭类建筑

正殿与正门轴线两侧还发现了平面为正方形的台基各一座,其上建筑各面一间,用四柱,柱础为方形,上开有十字形凹槽[9]。台基约6.3米见方,残高0.4米,其上柱础间距约3.6米。结合建筑所在位置及尺度判断,应为亭类建筑。

(五)廊庑

考古发掘工作仅对廊庑西南角部分进行了发掘,从发掘情况来看,廊庑外侧为砖砌墙体,内侧不设墙。砖墙包裹檐柱,墙基厚约1.3米,砖墙内外侧及中部用青砖错缝平砌,其间用碎砖填充的做法与其余建筑相同。外墙内各檐柱中间位置还设有辅柱,柱础略小于檐柱柱础。根据遗址发掘情况可以推知,廊庑连接正门一段,进深约6.02米,檐柱间距约5.3米;转而往北一段,进深约5.7米,檐柱间距约5.1米(图6)。

图片

图6 廊庑局部平面复原示意图(作者自绘)

(六)内院外偏房

廊庑外东南侧的偏房(偏殿)坐东朝西,面阔七间,进深三间,平面呈长方形。台基南北长约18.5、东西宽约12.3米,墙基厚约1米。部分柱础缺失,结合面阔方向前后檐柱础对位情况分析,可以明显看出建筑面阔方向各开间间广基本相同;进深方向为五柱四间,间广也基本相同。建筑室内南墙中部有烧火取暖用的火炕,北墙外有烟囱,两者由室内烟道相连(图7)。

图片

图7 偏房局部平面复原示意图(作者自绘)

(七)院墙

院墙由四面四段组成,总长度约465米,其中南墙长约103米,北墙长约104米,基本相等。东墙长约126米,西墙长约132米。墙基用石块垒砌而成,厚约2.7米,上部为夯土砌筑[10]

(八)其他

神庙庭院采用条砖和河卵石两种材料铺砌,其中,正门至正殿部分用河卵石铺砌,卵石之间用细碎的料礓石和黄土垫平压实。寝殿四周用条砖以一纵一横的方式铺砌[11]。由于尚未对整个遗址进行全面的考古发掘,尚无法判定这两种铺地方式的节点,笔者推测应位于寝殿与正殿之间。使用河卵石、细碎的料礓石和黄土的做法可以使雨水、积雪融化后的雪水从卵石间渗入地底,减少地面积水和冻融的损害,降低后期的维护。而前后庭院铺装方式不同,笔者认为是匠人为正殿与寝殿在空间上用铺地形式进行了一个划分,是中国传统前朝后寝制度的表现(图8)。

图片

图8 庭院鹅卵石铺地(吉林大学边疆考古研究中心供图)

在正殿两侧、院墙外还发现了神庙的排水系统。排水沟环绕院墙一圈,经由东南角排出与城外河道相连。院内根据已揭露的部分发现正殿两侧有两道南北走向平行于轴线的排水沟,西侧排水沟越过正殿后走势呈圆弧形,似与东排水沟相连环绕工字殿,但尚不知院内外排水系统如何相接。


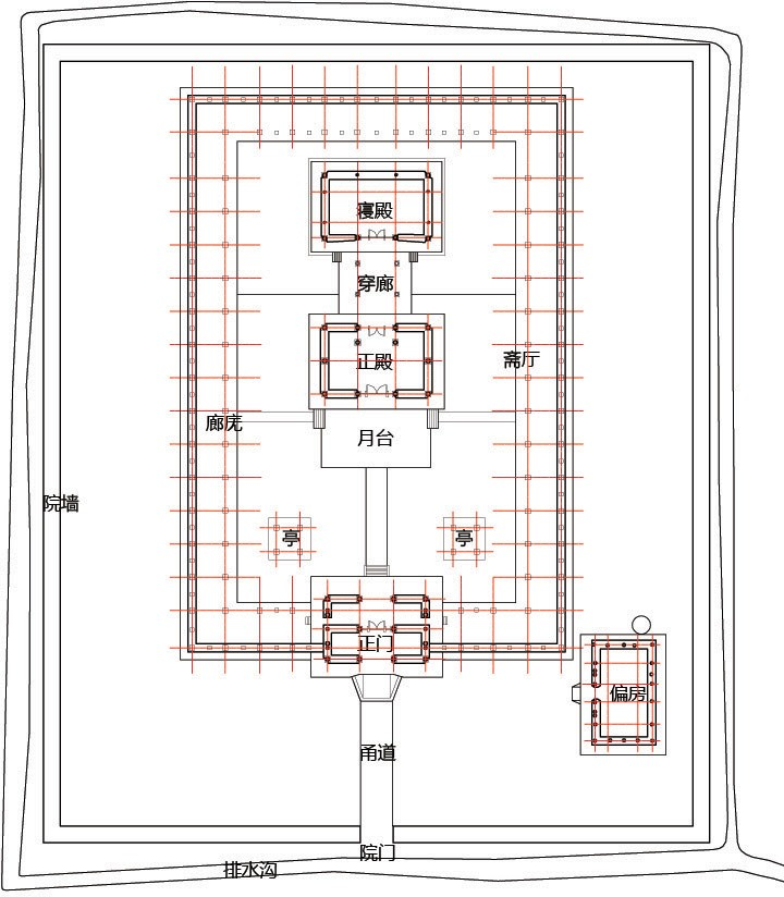
三、神庙总体布局特征


长白山金代神庙布局通过《大金集礼》记载和考古发掘已基本明确。据文献记载:“十四年六月,建毕正殿三间,正门三门,两挟廊各二间,北廊准上,惟不设门,东西两廊各七间,东廊当中三间就作斋厅,神厨三间,并添寝殿三间,贮廊三间。”文中所记载的正门、正殿、寝殿应位于建筑群中轴线上,沿轴线依次排开,文献记载中的开间数也与考古发现相符。正门两侧挟廊、东西两廊、北廊应为围合庭院的廊庑。但文中记载挟廊为两间、东西两廊各七间,根据遗址局部考古发掘的廊庑尺度推断,正门两侧的挟廊有四间,东西两廊为各十四间,与文献记载不符,是文献记载数量的两倍。东廊当中三间用作斋厅,神厨、贮廊的位置在文献中未明确,贮廊从字面上理解应为廊庑的一部分,且院落内再无三开间的建筑,所以神厨也应设于廊庑中。

综上,长白山神庙建筑群是一座典型的以工字殿为核心的廊院型院落。工字殿由穿廊连接正殿和寝殿组成。正殿前中轴线两侧的庭院中设有亭类建筑,庭院四周用廊庑围合。正门位于建筑群中轴线南端与廊庑相连。院外东南侧有一座东西向的建筑,整个建筑群最外围还建有一圈院墙,于南墙正中开有院门。对比宋金时期皇家祭祀类庙宇可知,长白山金代神庙的布局规整,沿袭了中原地区的做法,符合国家级祠祀建筑的布局特征(图9)。

图片

图9 神庙总平面复原示意(作者自绘)

正殿、寝殿均面阔三间,正殿前有月台。根据文献记载,正殿及其月台为神庙祭祀的核心。月台为神庙举行祭祀仪式的核心,所有的祭拜、祭文宣读等仪式均在正殿外月台完成,正殿是在各项仪式完毕后储存玉册、衮冕的场所。神庙的建筑布局也印证了这一特征,从图10可以看出,整座神庙以正殿月台为中心,核心廊庑院落以正殿中心为核心,由此构成了以正殿及其月台为核心的布局特征。

图片

图10 神庙布局中心示意(作者自绘)


四、神庙布局设计


长白山金代神庙自下令建造到建成用时一年半的时间,在院墙外发现的多处窑址,说明建造神庙所用的建筑类构件是就地取材加工而成。除去选址、召集匠人前往、砍伐建造所用木材、烧制砖瓦等准备工作,长白山地区由于气候寒冷,冬季施工难度巨大,最为寒冷的时间应无法施工。因此,神庙实际建造时间应不足一年,在这极短的时间内要营建出这样一组建筑,在当时应投入了较大规模的人力。此外,为按时完成建造,笔者推断工匠应从整个布局、建筑形制、建筑细部设计了较为简便的施工模式,既满足了当朝者的要求又能极大地缩短工期。由此,笔者在考古发掘的基础上结合神庙布局复原结果发现了神庙平面设计的几个特征:

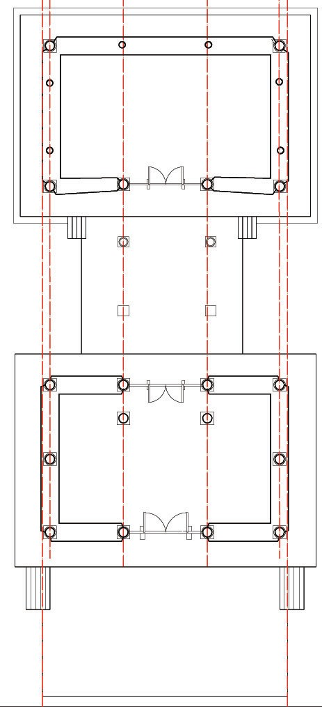
(一)工字殿的设计严格遵循对位关系

根据考古发掘数据,神庙正殿与寝殿面阔均为三间,且尺度基本相等。此外,两座建筑与穿廊的开间基本位于同一纵轴线上。穿廊的开间与两座建筑当心间檐柱对位可以使穿廊的阑额等构件较为简便地落在前后建筑的檐柱上,在结构上更为稳固的同时,施工也更为便捷。若营造尺取30.9厘米一尺,则通面阔约合5丈4尺,通进深约合3丈4尺,刚好差2丈。建筑当心间面阔为6.09米,合约2丈。因此,工字殿前后两座建筑尺度是基本相同的,区别在于柱网排布不同可能导致建筑在梁架形制上产生区别。正殿前月台东西边界刚好与两座建筑的外墙外缘在同一轴线上,较正殿台明边界向内缩进6.5尺(图11)。从上述分析可知,工字殿的设计遵循了严格的对位关系,控制尺寸采用整数尺,极大地简化了施工的难度。

图片

图11 工字殿布局示意(作者自绘)

(二)单体殿堂面阔、进深比例相同

从已有数据可知神庙正殿和寝殿通进深跟面阔比值约为3:5,正门同为三开间建筑,但其总体尺度小于前两座建筑,其通面阔约15.8米(合约5.1丈),通进深约9.7米(合约3.15丈),进深与面阔比值也同为3:5,廊庑外东西向的偏房,通面阔约15.5米(合约5丈),通进深约9.2米(合约3丈),进深与面阔同样存在3:5的比例关系,进深与面阔差值为2丈,与工字殿的两座建筑相同。这些平面呈长方形的建筑的进深和面阔比值均受3:5的约束关系,这样的设计确保了建筑整体形态上的规整。

(三)以网格为模数进行布局设计

傅熹年先生曾提出“运用方格网是中国古代建筑群组布局最具特色、最有效的方法,它实际上是建筑群组布局中使用的面积模数”[12]。采用网格对建筑布局进行设计更适合于古代的测量、施工条件。根据考古简报所测数据,正殿、寝殿次间间广5.35米、进深方向间广5.36米、廊庑面阔进深间广均5.38米,上述数据取均值合营造尺取整约为17.5尺,基本可以推断17.5尺作为一个重要的模数被用在神庙建筑的设计上。假设要使整个神庙的施工更为便捷,匠人可能会使用方格网作为模数来规划和设计神庙的布局等,这个17.5尺是否就是神庙布局的网格模数?

正殿进深仅有两间,面阔方向次间与进深间广基本相等,仅有3厘米的差值,这应是施工正常误差值。由此,正殿除当心间外,殿内次间与进深开间之间形成了四个边长为17.5尺的正方形网格。而为了突出当心间的地位,对其开间值进行了扩大,间广合营造尺恰好为2丈。以正殿内四个17.5尺的网格为基准四向外放,整座工字殿除正殿前月台略超出网格外,寝殿台明北边界刚好落在网格线上;两座建筑的台明东西边界基本落在网格中间。所以工字殿自月台至寝殿台明纵向跨度9个网格,横向跨度4个网格加2丈(图12)。

图片

图12 神庙工字殿网格示意(作者自绘)

进一步将网格外扩后发现,廊庑内外檐柱、正门墙体外皮均位于纵向网格线上。廊庑所有墙内辅柱均位于网格横线上,推测廊庑墙内辅柱不光在结构上起到支撑作用,更重要的是,辅柱是整个神庙的网格控制点。庭院内两座亭类建筑距离正门墙体约一个网格,至神庙中轴线约2个网格。廊庑外偏房进深方向柱网也基本位于网格线上,最外围的院墙内侧刚好同样位于网格线上(图13)。

图13 神庙布局网格示意(作者自绘)

由此笔者认为,正殿、寝殿当心间间广单独采用了2丈的尺度,自次间起便使用以17.5尺的正方形网格为模数设计整座建筑群的布局。整座建筑群南北方向跨度23个网格,东西向跨度18个网格加2丈(工字殿当心间间广)。廊庑以内的核心院落南北向跨度为17个网格,东西向横跨10个网格加2丈。


五、结语


通过复原研究发现,长白山金代神庙建筑群在布局上沿袭了中原地区国家级祠祀建筑群的布局手法,以工字殿为核心,采用廊院型布局的院落。整个建筑群以举行祭祀仪式的正殿月台为中心,内圈廊庑院落以供奉册封玉册、衮冕的正殿为中心,构成了以正殿及其月台为中心的布局特征。

神庙地处偏远、气候寒冷,在保证建筑规整的同时为了缩短施工周期,匠人在建造工字殿一组建筑的时候采用了严格的对位关系,并采用了进深与面阔3:5的比例关系对主要单体建筑的尺度进行了约束。在建筑群整体布局上,以17.5尺的方格网为模数以控制建筑群内各类建筑的位置,方便测量和施工。

由于遗址尚未全面发掘,仍有较多问题未解。本文是基于考古发掘简报和考古发掘机构提供的资料进行了复原的初步探讨,部分复原结果可能不甚准确,待遗址进一步发掘后再根据实际情况进一步完善研究。

[本文为中国文化遗产研究院课题“长白山金代神庙复原研究”成果]

来源:中国文化遗产杂志